Vencedor da categoria nos países:

Vybudování centra kardiovaskulární a transplantační medicíny

Construsoftbimawards - Vybudování centra kardiovaskulární a transplantační medicíny
Categoria Projectos Públicos
Ano 2024
País Czech Republic
Organização APF Design
Parceiros do Projeto A+Z projekt team, s.r.o.
Autor LT PROJEKT a.s.
Co-autores A+Z projekt team, s.r.o.
Cliente Centrum kardiovaskulární a transplantační chirurgie
Local de construção Brno
Tags ConcreteTekla Structures

CKTCH – výstavba nové budovy pro pacienty po transplantacích orgánů
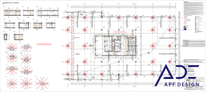
Projekt novostavby nemocniční budovy „CKTCH – výstavba nové budovy pro pacienty po transplantacích orgánů“, nacházející se v nemocnici Brno, je kompletně navrhovaný za pomocí BIM nástrojů. Objednatel v podobě „Centrum kardiovaskulární a transplantační chirurgie“, si pro architektonický návrh vybral zkušeného generální projektanta s nemocničními objekty „LT PROJEKT a.s.“. Partner projektu konstrukční části je společnost „A+Z projekt team, s.r.o.“, která prováděla statické výpočty.
Novostavba o rozměrech 113 bm na 72,5 bm o celkové výšce 37 bm, je navržena jako devítipodlažní budova o objemu 10 352 m3 betonu a 2 834 tun vyztužení. Budova je rozdělena na dvě spodní podlaží slouží pro parkování automobilů a horní podlaží slouží pro pacienty. Celá konstrukce je navržena jako monolitická železobetonová konstrukce ztužena dvěma jádry, obsahující schodiště, výtahové šachty a vzduchotechnické komíny. Zbylé části nosné konstrukce jsou tvořeny sloupy se stropními deskami, které jsou po obvodě lemovány průvlaky. Celá konstrukce je v obou směrech rozdělena na tři samostatné dilatační celky. Pro lepší statické zajištění mají sloupy po obvodě tvar písmene „T“ a navazují na obvodové průvlaky. Založení budovy je na soustavě pilot rozdělených do pěti typů, které jsou kluzně odděleny od celkové stavby podkladním betonem, který tvoří kluznou desku. Nejkomplikovanější částí celého projektu byl návrh sloupků a stropních desek. Tři druhy sloupů (kruhový, oválný a hranatý), má každá dvě patra měnící se průřez a to v několika variantách profilů, včetně vyztužení.
Již při samotném návrhu konstrukce se dbalo na ty nejmenší detaily v podobě smykových lišt u sloupů, smykových trnů ve stěnách, vylamovacích lišt u podest a zvukově akustických tlumících podložek u schodišťových ramen. Celkem bylo použito více než 6 700 kusů těchto prvků
V prvním a druhém nadzemním podlaží se nachází designové zaoblené tříramenné schodiště , které vytváří atypický prostup přes stropní konstrukci. Na střešní části se nachází ocelová konstrukce tvořící designový část střešního pláště. Celá konstrukce má pravidelný obdélníkový charakter, s měnícím se půdorysným tvarem, po celé výšce. Nejnáročnější částí návrhu byla nájezdové rampy, které jsou na konci zaobleny.

CKTCH – The construction of the new building for  the organ transplant patients

The project of the new construction of the hospital building ‘CKTCH’ – the construction of the new building for the patients after the organ transplantation, located in the Brno hospital, is designed entirely with the use of the BIM tools. The client, i.e. the ‘Centre of Cardiovascular and Transplantation Surgery’, has chosen as an architectural  designer the  ‘LT PROJEKT a.s.’ that has rich experience in the field of hospital building design. The partner of the construction part of the project is the  ‘A+Z projekt team, s.r.o.’ company, that performed the static calculation.

The new building, measuring 113 m by 72.5 m with a total height of 37 m, is designed as a nine-story building with the volume of 10,352 m3 of concrete and 2,834 tons of reinforcement. The building is divided into two lower floors used for car parking and the upper floor used for the patients. The entire structure is designed as a monolithic reinforced concrete structure with two cores, containing staircases, elevator shafts and ventilation chimneys. The remaining parts of the supporting structure are made up of columns with the ceiling slabs, which are situated around the perimeter with the purlins. The entire structure is separated into six parts. For better static security, the columns are shaped around the perimeter in a form of the ‘T’ letter and they are connected to the parameter beams. The foundation of the building is based on a system of piles, divided into five types, which are slidably separated from the overall structure by the underlying concrete, which forms a sliding plate. The most complicated part of the whole project was the construction of the ramps, which are rounded at the end as well as the design of the posts and concrete slabs. There are three types of columns (circular, oval and square), every two floors the diameter of the column diminishes.

During the design of the structure itself, attention was paid to the smallest details in the form of skid strips? at the columns, shear reinforcement in the walls, break-out strips? at the landings and sound-acoustic cushioning pads at the stairs. In total, more than 6,700 pieces of these elements were used

On the first and the second floor, there is a designer three-armed, rounded, staircase, which creates an atypical passage through the ceiling structure. On the roof part there is a steel construction with a photovoltaic panel. The entire structure of the building has a regular rectangular character, with the bay windows on the third, fourth and the fifth floors.

 

Deixe o seu comentário

Subscribe
Notify of

0 Comments
Newest
Oldest Most Voted
Inline Feedbacks
View all comments