Wood industry plant – Michigan, USA

Construsoftbimawards - Wood industry plant – Michigan, USA
Category Industrial Projects
Year 2017
Country Poland
Organization Engineering Office Kozlowski-Projekt
Author Engineering Office Kozlowski-Projekt
Place of construction Michigan, USA
Tags

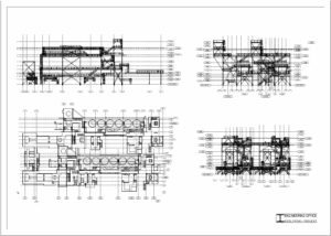
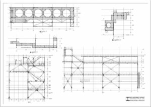
Design of support structures for machinery and equipment in the task of building a wood panel factory in Michigan, USA. In terms of execution are construction concepts, static calculations in accordance with US standards and a complete set of workshop documentation. Documentation for over 30 objects with a total weight of more than 1300 tonnes has been developed.

Design of support structures for machinery and equipment in the task of building a wood panel factory in Michigan, USA. In terms of execution are construction concepts, static calculations in accordance with US standards and a complete set of workshop documentation. Documentation for over 30 objects with a total weight of more than 1300 tonnes has been developed.

Leave your comment

Subscribe
Notify of

0 Comments
Newest
Oldest Most Voted
Inline Feedbacks
View all comments