Steel structure for Sorting Station and Crushing Station

Construsoftbimawards - Steel structure for Sorting Station and Crushing Station
Category Industrial Projects
Year 2019
Country Poland
Organization OMNIKON
Author Rafał Kossakowski
Co-authors Maciej Listewnik, Piotr Zaborski
Client TRENNSO TECHNIK
Place of construction Brandenburg, Niemcy
Tags

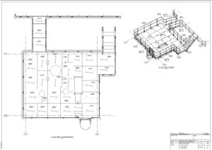
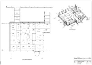
Konstrukcja stalowa kruszarni i sortowni materiałów odpadowych.
Przykład budownictwa przemysłowego. Głównymi ustrojami nośnymi są ramy stalowe wzmocnione stężeniami.
Konstrukcja składa się z pięciu oddzielnych konstrukcyjnie obiektów połączonych ze sobą zestawem kładek, pomostów oraz schodów i drabin.
Przypadki obciążeń, stałych jak i dynamicznych oraz ich kombinacje zostały uwzględnione na etapie projektowania konstrukcji.
Profile stalowe jak i połączenia zgodne z normami EC.
Wszystkie elementy główne konstrukcji jak i elementy pomocnicze takie jak drabiny, barierki, schody oraz kraty pomostowe i blachy fałdowane
zostały zamodelowane i narysowane w programie TEKLA Structures.

Steel structure for Sorting Station and Crushing Station.
Perfect example of industrial engineering. The structure is a platform for the installation of machinery for crushing and sorting material. It consist of five parts which are completely designed in TEKLA STRUCTURES.
Cases of dead weight of structural members as as machinery, static equivalents of dynamic operational forces of machinery and imperfections are considered in calculations.
Everything designed according to standars.
Full 3D model designed and drawned in TEKLA STRUCTURES. The main steel structure which is directly support for all the technological machines and the rest of equipment necessary to maintain and control machines as railings, ladders and staircases, platform gratings and bulb plates also included.
All the connections between elements designed in TEKLA STRUCTURES.

Leave your comment

1 Comment
Newest
Oldest Most Voted
Inline Feedbacks
View all comments
Anonymous
6 years ago

Typical make to order, responding to individual needs of Company