Mohácsi Duna-híd

Construsoftbimawards - Mohácsi Duna-híd
Category Infrastructure Projects
Year 2025
Country Hungary
Organization SPECIÁLTERV Kft.
Author SPECIÁLTERV Kft., FŐMTERV Kft.
Client ÉKM (Építési és Közlekedési Minisztérium), Duna Aszfalt Zrt.
Place of construction Mohács
Tags

A MOHÁCSI DUNA-HÍD 

A projekt számokban 

A Duna-híd teljes hossza: 756 méter. 

Acél tömege: 15.000 t 

Trimble szoftverek: Tekla Structures, Trimble Connect 

Tervezők: SPECIÁLTERV Kft és FŐMTERV Zrt. 

Kivitelező: Duna Aszfalt Zrt. 

Megrendelő: Építési és Közlekedési Minisztérium 

Összhang a tervezésben 

Az épülő Mohácsi Duna-híd és kapcsolódó úthálózat tervezése 2019-ben kezdődött. A közel 30 km hosszúságú út tervezési projekt főtervezője a SPECIÁLTERV Kft., a Duna feletti folyami híd a SPECIÁLTERV Kft. és a FŐMTERV Zrt. közös alkotása. A 756 m teljes hosszúságú új Duna-híd szerkezete három egymást követő ívhíd sorozataként valósul meg.  A projekt teljes tervezési koordinációját és két darab, egyenként 230 m és 250 m fesztávú ívszerkezet komplett tervezését a SPECIÁLTERV végezte. A 270 m-es fesztávolságú „mederhíd” szerkezet engedélyezési, kiviteli és gyártmány terveit a FŐMTERV Zrt. készítette. 

A szerkezeti kialakítás alapelvei azonosak, a három ív geometriájában és szerkezeti rendszerében vannak minimális eltérések az egyes egységek méreteihez és technológiai adottságaihoz igazodva. A tervezési folyamat során a két iroda szorosan együttműködött, a főbb koncepcionális és részletszintű döntések közösen születtek meg. 

A kivitelezési technológia az egyes egységek esetében eltér a helyszíni adottságok és szerelési körülmények következtében. Az eltérő építési technológiától függetlenül a híd egységes szerkezeti rendszerként valósul meg, a különböző részegységek integrált módon illeszkednek. A kiviteli tervek alapján kiírt építési tendert Duna Aszfalt Zrt. nyerte meg, a szerződés 2024. augusztus 30-án lépett hatályba. 

Az új Duna-híd – egy regionális projekt kulcseleme 

A Dél-Magyarországon található Mohács és környéke régóta várt egy állandó híd megépítésére, amely állandó kapcsolatot teremt a Duna két partja között. Az épülő új Duna-híd egy regionális jelentőségű projekt fő eleme, melynek célja a regionális összeköttetés javítása, a helyi gazdasági növekedés ösztönzése, valamint megbízható közlekedési kapcsolat biztosítása, mely egy déli autópályanyomvonalnak is a része lehet. A projekt keretében valósul meg mintegy 30 km út 8 turbókörforgalmú csomóponttal, illetve 13 további műtárggyal és hídszerkezettel.  

A Duna-híd tervezése önmagában egy rendkívül sokváltozós, komplex feladat volt – Európa egyik legforgalmasabb vízi útja mellett egy szigorúan védett ártéri természetvédelmi terület felett is átível, a körültekintő tervezés elengedhetetlen része volt a BIM modellezés annak érdekében, hogy minden előírásnak és szabványnak megfelelő, tájba illesztési szempontokat figyelembe vevő tereptárgy, ’landmark’ valósulhasson meg. A BIM modellezés amellett, hogy lényegesen lerövidítette a tervezési folyamatot, egyes bevontak számára jól követhető és transzparens platformnak bizonyult annak biztosítására, hogy a végeredmény mind tervezői, mind megrendelői oldalról megfelelő végeredményhez vezessen.  

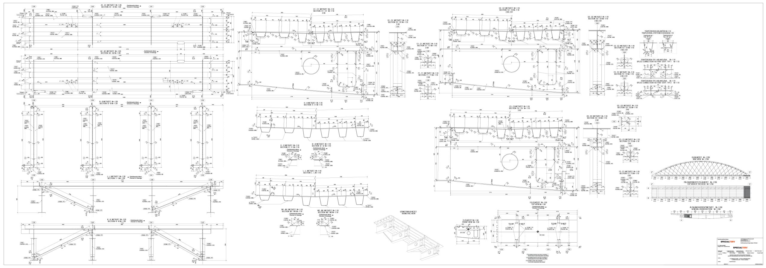
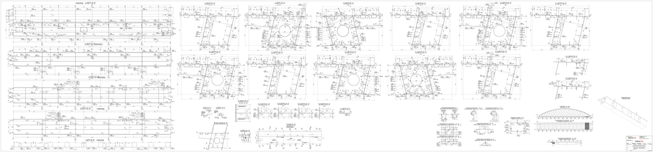
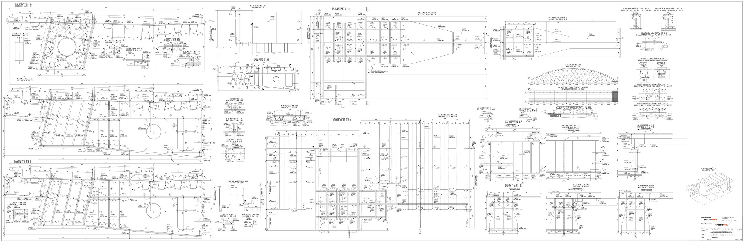
A híd szélessége 22,82 méter, 3,30 méter kerékpárútból és 2 × 2 forgalmi sávból áll. Az acél felszerkezet merevítőtartójának szerkezeti magassága 2,73 méter. Az 1,60 méter széles ívek és a különböző magasságú doboztartók, amelyeket a felfüggesztési rendszerhez hasonló „network” elrendezésű acélcsövek kötnek össze. Az ívhidak merevítőtartói 1,64 méter széles és 1,80 méter magas szekrénytartók, amelyeket 4 méterenként ívesen változó magasságú nyitott, „I” keresztmetszetű kereszttartók kapcsolnak össze. 

A hálózati elrendezésű függesztőkábelek eltérő síkokban vannak elhelyezve. 

A Duna-híd acélszerkezetének gyártása és építése 

A Duna híd építése 2024 évben elkezdődött, jelenleg az acélszerkezetek szerelőterületeinek kialakítása és az alépítményi elemek cölöpözése zajlik, illetve ezzel párhuzamosan az acél felszerkezetek gyártása. A helyszíni szerelés 2025 májusában indul, az építés várhatóan 3 évet vesz igénybe. 

Tervezői együttműködés projektre szabott Tekla modell hierarchia alkalmazásával 

A “B1” és “B2” hidak felszerkezetének és megépítéséhez szolgáló technológiai kisegítő szerkezeti elemek modelljét a SPECIÁLTERV Kft., míg a “B3” híd felszerkezetének modelljét a FŐMTERV Zrt. készítette. Az közös együttműködés a készülő modellek és információk folyamatos megosztásával történtek. 

A modellek felépítéséhez egy hierarchiát kellett kialakítani. A hidak felszerkezeteinek a fő alkotó elemei a pályaszerkezet, illetve az ívtartó. E szerkezeti elemek további egységekre lettek felosztva az építési technológiát és a szerkezeti adottságokat figyelembevéve.  

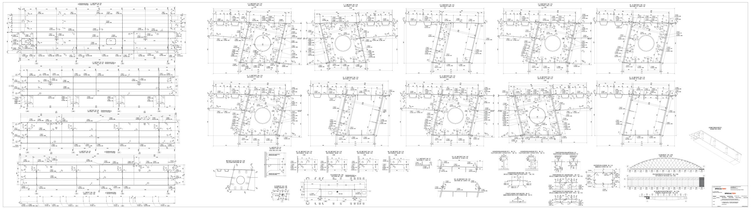
A “B1”-es híd pályaszerkezete 13 db és a “B2”-es híd 14 db szerelési egységből tevődik össze, mindkét híd ívtartója 10 db szerelési egységre tagolódnak.  

Az ívtartó és a pályaszerkezet szerelési egységei is több gyártási egységre lettek felbontva. A felosztásuknál a főbb tényezők a gyártási egységek nettó tömegei és a maximális méreteik voltak. 

A felszerkezet Tekla modellek szervezésénél figyelembe kellett vennünk, mint a gyártói, mint az építési technológiai igényeket. Mivel a gyártási egységeknek, illetve a helyszínen összeállított szerelési egységeknek több szintű assembly-ket kellett alkalmaznunk a gyors adatok kinyerésének érdekében. 

A következő építési technológiai segéd szerkezetek kerületek még modellezésre a Teklában: 

– Betolócsőr – a hidak betolását segíti 

– Segédrácsrudak – a híd betolása közben merevíti a hidat 

– Szerelő állványok – az ívtartók megépítésére lettek kialakítva 

– Tolópadok – a hidak alatt helyezkednek el betolás közben 

A modellek szervezésében egy egyedi adat struktúrát kellett kialakítani, mely pontosan meghatározta, hogy mely szerkezeti rendszer mely phase-re kerüljön, mely gyártmányok milyen assembly prefix-el rendelkezzen, mely elem (part) milyen névvel, part prefix-el és egyéb tulajdonságokkal rendelkezzen. 

Integrált szoftverhasználat a tervezésben – parametrikus tervezés 

A teljes ívtartó és a pályaszerkezeten lévő csomólemezek Rhino & Grasshopper szoftverek segítségével történt. Nagy segítség volt a parametrikus tervező szoftver annak érdekében, hogy az ívelt szerkezeti elemeket pontosan betudjuk modellezni, illetve némely elemek kiosztását optimalizálni tudjuk. 

A Grasshopper és Rhinoceros szoftverek minél integráltabb bevonása a tervezési folyamatba elősegíti a tervezési és modellezési folyamatot. 

A statikusok és a modellezők közötti ellenőrzést Trimble Connectben végeztük el. A Tekla modellt három reprezentációs módban exportáltuk: 

  • A szerkezeti elemek könnyebb megkülönböztetését eltérő színhasználattal segítettük elő.
  • Az anyagminőség színezéshez mintamodellt készítettünk, melyek Trimble Connectben leszűrhetőek, és a színezés segítségével könnyen azonosíthatóak.
  • Külön reprezentációs szűrőt állítottunk be a lemezvastagságok azonosításának elősegítésére, mellyel a statikusok munkáját könnyítettük meg. 

A 3D-ben modellezett állomány világítástervezési folyamatot is nagyban elősegítette, és biztosította, hogy valósághű világítási koncepcióterv születhessen.  

Modell és tervkészítés 

A pályaszerkezet modellezésénél segéd dwg rajzok lettek alkalmazva, melyeket referencia modellként lettek berakva, illetve több egyedi custom component is lett alkalmazva.  

A hídmodell építése közben egy éles elméleti határt kellett húznunk a parametrizálások (automatizálások) kapcsán. Komoly mérlegelést igényelt, hogy mely elemeket érdemes parametrizáltan megadni, illetve, mely elemeket célszerű egyedileg bemodellezni. A komplex lemezek leélezése, egyes egyedi, ritkán előforduló elemek esetében hatékonyabbnak bizonyult a manuális átvezetés. 

A modellek építése közben nagy figyelmet kellett fordítani arra is, hogy a modell oly módon legyen felépítve, hogy a készülő gyártmánytervek könnyedén klónozhatók lehessenek. A modell építések közben alkalmazott custom component-ek a modell megépítését követve felrobbanttásra kerültek a tervek stabilitásának érdekében. 

Összhang és ellenőrzés 

A modell építése folyamán több fajta ellenőrzést kellett végre hajtani. Több típusú adat ellenőrzéséhez több fajta ellenőrzési fajtát kellett kialakítani. 

Az előre meghatározott adat struktúrának köszönhetően, könnyedén és gyorsan végrehajthatóak voltak azon ellenőrzések, melyek egyszerű szűrők segítségével ellenőrizhetőek voltak. Modell építésének főbb fázisainál mindig lett ütközési vizsgálat végrehajtva. Különböző reprezentációs szűrők lettek kialakítva annak érdekében, hogy nem Tekla felhasználók is ellenőrizni tudják a modellt Trimble Connect segítségével. 

Kihívások- modellépítés az emberi faktor figyelembevételével 

A tervezési feladat komplexitásából fakadóan kiemelt feladat volt, hogy minél több gyártmányterv klónozható legyen. Akadály főleg az ívelt elemeket, illetve a főtartó esetében jelentkezett. A klónozható elemek automatizálása nagyban elősegítette azt, hogy ezekre az elemekre elég figyelmet tudjunk fordítani, és ezáltal egyedi eljárással tudjuk kezelni. 

További nagy kihívás a változások frekvenciája és volumene volt – ebben nagyon sokat segítettek az ellenőrzési státuszok, az ütközésvizsgálat, anyagminőség- és lemezvastagság-vizsgálat annak érdekében, hogy minél több hibát kiszűrjünk a módosításokat követően. 

A gyors és hatékony modellezésben nagyon hasznosnak bizonyult, hogy sok klónozható elemmel dolgoztunk, melynek köszönhetően kevés utómunkával tudtunk használható gyártmányterveket készíteni. 

Tapasztalatok  

Munkánk során nagyon hasznos következtetéseket vontunk le, mely a továbbiakban még hatékonyabbá fogja tenni a modellezési folyamatot. A Tekla modell több, kisebb szerkezeti egységre való lebontása nagyban hatékonyítja a tervezést – a folyamatot eképp előkészítve több tervező egymástól függetlenül, mégis egységes szerkezetben tud előrehaladni. Ennek a módszernek is vannak hátrányai (tervpecsételés kérdései), azonban a modellezés és a tervezés hatékonyságát nagyban elősegíti. 

További tanulság, hogy amikor valós gyártmányokat vonunk össze Teklán belül, az ezekre alkalmazott custom componentek felrobbantása elengedhetetlen az előrehaladáshoz. A custom component módosításakor valójában nem módosítás történik, hanem a meglévő component törlése, melynek helyére egy új component kerül. Ez azt eredményezi, hogy az adott component új számot kaphat, esetenként átnevezésre is kerül. Ennek eredményeképp a Teklában átnevezett gyártmány – assembly – szétesik. A felrobbantással hatékony változtatási lehetőséget áldoztunk fel, azonban nagymértékű tervgenerálási stabilitást nyertünk, mely a tervezés egészét tekintve nagyobb prioritással bírt. 

A Tekla Structures használatával egy magas szinten struktúrált, mégis átlátható tervezési folyamatot biztosított a két tervezői csapat között. A gyártmánytervek elkészítési idejét jelentősen lecsökkentette szoftver által biztosított számos automatizálási lehetőség amellett, hogy azok a legmagasabb kidolgozottsági fokon álltak már a tervezés korai stádiumában is.  

 

DANUBE BRIDGE, MOHÁCS 

Project in Numbers 

Total length of the Danube Bridge: 756 meters. 

Steel mass: 15,000 tons 

Trimble software: Tekla Structures, Trimble Connect 

Designers: SPECIÁLTERV Ltd. and FŐMTERV Co. 

Contractor: Duna Aszfalt Co 

Client: Ministry of Construction and Transport 

Harmony in Design 

The design of the Mohács Danube Bridge and the associated road network began in 2019. The main designer of the approximately 30 km long road design project is SPECIÁLTERV Ltd., while the Danube River bridge is a joint creation of SPECIÁLTERV Ltd. and FŐMTERV Co. The new Danube Bridge, with a total length of 756 m, is constructed as a series of three consecutive arch bridges. The complete design coordination of the project and the complete design of two arch structures, each with spans of 230 m and 250 m, were carried out by SPECIÁLTERV. The approval, execution, and fabrication plans for the 270 m span “river bridge” structure were prepared by FŐMTERV Co. 

The principles of structural design are identical, with minimal deviations in the geometry and structural system of the three arches, adjusted to the dimensions and technological requirements of each unit. During the design process, the two offices collaborated closely, and major conceptual and detailed decisions were made jointly. 

The construction technology varies for each unit due to site conditions and assembly circumstances. Regardless of the implemented construction technologies, the bridge is realized as a unified structural system, with various subunits fitting together in an integrated manner. The construction tender based on the detailed design plans was won by Duna Aszfalt Co., with the contract coming into effect on August 30, 2024. 

The New Danube Bridge – A Key Element of a Regional Project 

The region around Mohács in Southern Hungary has long awaited the construction of a permanent bridge that establishes a constant connection between the two banks of the Danube. The new bridge is a key element of a project of regional significance, aimed at improving regional connectivity, promoting economic growth, and ensuring reliable transportation links, which may also be part of a future southern motorway alignment. The project includes approximately 30 km of road with 8 turbo roundabouts, as well as 13 additional bridge structures. 

The design of the Danube Bridge itself was a highly complex task – it spans one of Europe’s busiest waterways and a strictly protected floodplain nature reserve, making careful planning essential. BIM modeling was a crucial part of the process to ensure that all regulations and standards were met, resulting in a site-appropriate landmark. BIM modeling not only significantly shortened the design process but also provided a clear and transparent platform for stakeholders, ensuring that the final result met the expectations of both designers and clients. 

The bridge width is 22.82 meters, consisting of a 3.30 m wide bicycle lane and 2 × 2 road traffic lanes. The structural height of the stiffening girder of the steel superstructure is 2.73 meters. The 1.60-meter wide arches and variously sized box girders are connected by steel tubes arranged in a “network” layout, similar to the hanger system. The stiffening girders of the arch bridges are 1.64 meters wide and 1.80 meters high, connected by open, “I”-shaped cross beams that vary in height every 4 meters. 

The steel structure of the Danube Bridge: Manufacturing and Construction 

The construction of the Danube Bridge began in 2024, with the establishment of the steel structure assembly areas and the piling of substructure elements currently underway, alongside the manufacturing of the steel superstructures. On-site assembly is set to start in May 2025, with construction expected to take 3 years. 

Designer Collaboration Using Project-Specific Tekla Model Hierarchy 

The models for the superstructures and auxiliary structural elements for the “B1” and “B2” bridges were created by SPECIÁLTERV Ltd., while the model for the “B3” bridge superstructure was prepared by FŐMTERV Co. Cooperation involved continuous sharing of the developing models and information. 

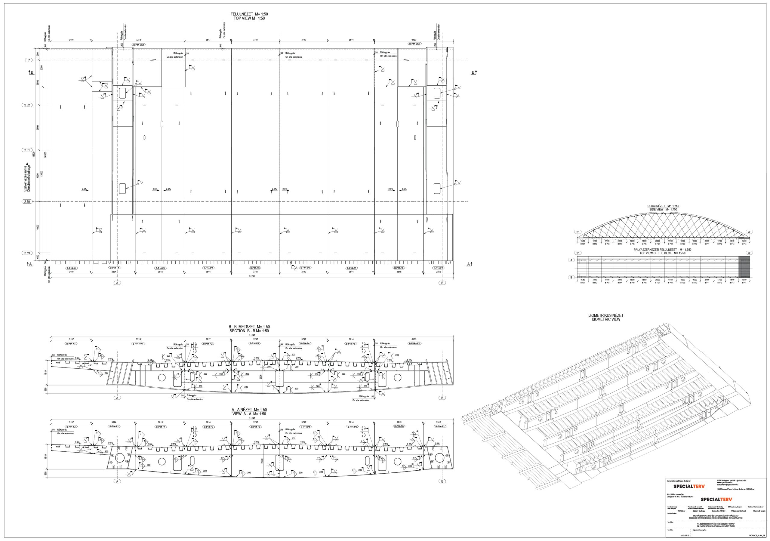
A hierarchy had to be established for the structure of the models. The main components of the bridge superstructures are the deck structure and the arch support. These structural elements were further divided into units considering construction technology and structural conditions. 

The deck of the “B1” bridge consists of 13 assembly units, while the “B2” bridge consists of 14 assembly units. Each bridge’s arch support is divided into 10 assembly units. 

The assembly units for the arch support and deck were also broken into several sub-assemblies (fabrication units). The main aspects for their division were the net weights of the fabrication units and their maximum dimensions. 

In organizing the Tekla models for the superstructure, both fabrication and construction technology requirements had to be considered. Since the fabrication units and on-site assembled units required multiple levels of assembly in the model for quick data extraction. 

The following auxiliary structures still require modeling in Tekla: 

  • Launching nose – assists in the bridge’s installation
  • Auxiliary braces – stiffening the bridge during installation
  • Temporary supporting towers – designed for the erection of the arches
  • Launching pads – located under the bridges during insertion

In organizing the models, a unique data structure had to be established, precisely defining which structural system belongs to which phase, which products have which assembly prefixes, and also the names, part prefixes and other properties of each part.  

Integrated Software Use in Design – Parametric Design 

The modeling of the arches and the hanger connections on the deck structure was fully done using Rhino & Grasshopper software. The parametric design was a great help in accurately modeling the curved structural elements and optimizing the distribution of certain elements. The integration of Grasshopper and Rhinoceros software into the design process facilitated both design and modeling. 

The verification between structural engineers and BIM modelers was carried out in Trimble Connect. The Tekla model was exported in three representation modes: 

  • Colour coding according to structural elements facilitated the easier distinction of the load-bearing structure.
  • A sample model was created with steel quality colour code, in order to be easily filtered and identified in Trimble Connect.
  • A separate representation filter was set up to assist in identifying plate thicknesses, making the engineers’ work easier.

The 3D modeled files also greatly enhanced the lighting design process, ensuring that a realistic lighting concept could be developed. 

Model and Plan Preparation 

During the modeling of the deck structure, auxiliary DWG drawings were used as reference models, and several custom components were also applied. 

While constructing the bridge model, a clear theoretical boundary had to be drawn regarding parameterizations (automations). Serious consideration was required to determine which elements should be parametrically defined and which should be modeled individually. For complex plates and certain unique, rarely occurring elements, manual transitions proved more effective. 

Great attention was also needed to ensure that the model was structured in a way that allowed for easy cloning of the upcoming manufacturing plans. The custom components used during the model construction were exploded after the model was built to ensure the stability of the plans.  

Leave your comment

1 Comment
Newest
Oldest Most Voted
Inline Feedbacks
View all comments
Dr Hargitai János
10 months ago

Ez a híd egy évszázados álom megvalósulása lesz.
Sok küzdelem után ma már nagy öröm és egyben elégedettség is az építés figyelemmel kísérése.

Felértékelődik ezzel térségünk és Baranya vármegye is.
Mohács 500 a nagy lehetőségünk!??