Big Green Egg

Construsoftbimawards - Big Green Egg
Category Commercial Projects
Year 2018
Country Benelux
Organization CD20
Author constructie modeleur L.Rieswijk
Co-authors ontwerpadvies D. Beenen , fabriekstekeningen S. Banda en team.
Place of construction Arnhem
Tags

Hoofdkantoor voor Big Green Egg Europe

De firma ‘Big Green Egg Europe’ (BGEE) heeft ambitie. Het bedrijf is in Europa en het Midden-Oosten de alleenvertegenwoordiger van de ‘Big Green Egg’, een type barbecue dat door adepten wereldwijd als de top wordt beschouwd. Het nieuwe hoofdkantoor van de BGEE zal worden gebouwd aan de rand van het dorp De Lier, in het Westland. Deze streek draagt als Nederlandse centrum voor de glastuinbouw de naam “Glazen Stad’. De locatie van het hoofdkantoor BGEE maakt onderdeel uit van een zeer non-descript bedrijvenpark. In de directe omgeving van de locatie staan enkele grootschalige anonieme hallen, bekleed met zilvergrijze beplating. Voor afstemming op de context was daarom geen enkele aanleiding.

Big Green Egg Europe heeft een uitgesproken identiteit, die berust op haar gedrevenheid om op onorthodoxe, informele wijze de ‘pole position’ in de wholesale wereld van barbecues te veroveren.

Het ontwerp voor het hoofdkantoor straalt dezelfde eigenzinnigheid uit.

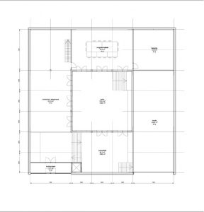
De footprint is een perfect vierkant waarbinnen alle vertrekken zijn gecentreerd rondom een vierkante patio, het fysieke middelpunt van de organisatie. Hier komt het personeel ongedwongen samen, hier worden geïnteresseerden en potentiële afnemers vertrouwd gemaakt met de Big Green Egg. De ruimten rondom de patio klimmen als het ware op in een spiraalvorm. Vanaf de entreehal op maaiveldniveau gaat een trap naar een half niveau hoger waar een volledig uitgeruste eetkeuken uitkomt op de patio. Dit is de plek waar uitzonderlijke barbecuemaaltijden worden geprepareerd waarvan genodigden, binnen of buiten op de patio, kunnen genieten. De volgende halve trap opwaarts leidt naar de kantoorverdieping die rond de patio doorloopt. Op deze verdieping heeft iedere werkplek direct zicht op de patio en via ‘French windows’ ook een fysieke relatie. Vanaf dit niveau zorgt een buitentrap voor een short-cut naar de patio.

In de ring op de begane grond is links naast de entreehal de showroom gesitueerd, met in zijn verlengde een kookboeken bibliotheek, die in de toekomst een verzameling zal herbergen die zijn gelijke niet kent. Deze ruimte gaat vervolgens over in een vergaderruimte. Het resterende deel van de begane grond wordt in beslag genomen door een loods en een berging.

In het BGEE hoofdkantoor is alles gecentreerd rondom de patio. Daarom zijn de gevels aan de patio zo transparant mogelijk en zijn de gevels aan de openbare ruimte vrijwel gesloten, er is tenslotte niets te zien.

De buitengevel van het gebouw bestaat uit een doorgaande schil van ruw donkerkleurig metselwerk, die alleen op drie plaatsen wordt onderbroken door levensgrote glasvlakken die op spectaculaire wijze in een flits laten zien waar het gebouw zich bevindt. Alle gevels rondom de patio zijn van glaspuien, met op de begane grond dubbel-openslaande deuren en op de verdieping dubbel-openslaande French window

Head office for Big Green Egg Europe

The firm ‘Big Green Egg Europe’ (BGEE) has ambition. In Europe and the Middle East, the company is the sole representative of the ‘Big Green Egg’, a type of barbecue that is regarded as the top by adepts worldwide. The new headquarters of the BGEE will be built on the outskirts of the village of De Lier, in the Westland. This region bears the name “Glass City” as the Dutch center for glasshouse horticulture. The location of the BGEE head office is part of a very non-descript business park. In the immediate vicinity of the location are several large-scale anonymous halls, covered with silver-gray plating. There was therefore no reason for attuning to the context.

Big Green Egg Europe has a distinct identity, based on its drive to conquer the pole position in the wholesale world of barbecues in an unorthodox, informal manner.

The design for the head office exudes the same quirkiness.

The footprint is a perfect square in which all rooms are centered around a square patio, the physical center of the organization. Here the staff meet in a casual manner, interested people and potential buyers are familiarized with the Big Green Egg. The spaces around the patio climb up, as it were, in a spiral shape. From the entrance hall at ground level a staircase goes up to a half level higher where a fully equipped kitchen opens onto the patio. This is the place where exceptional barbecue meals are prepared which guests can enjoy, inside or outside on the patio. The next half staircase leads up to the office floor that runs around the patio. On this floor, each workplace has a direct view of the patio and also a physical relationship via ‘French windows’. From this level, an outside staircase provides a short cut to the patio.

In the ring on the ground floor, the showroom is located to the left of the entrance hall, with, in its extension, a library of cookbooks, which in the future will house a collection that has no equal. This space then turns into a meeting room. The remaining part of the ground floor is occupied by a shed and a storage room.

In the BGEE head office everything is centered around the patio. That is why the facades on the patio are as transparent as possible and the façades are virtually closed to the public space. After all, there is nothing to see.

The outer facade of the building consists of a continuous shell of rough, dark-colored masonry, which is interrupted only in three places by life-sized glass surfaces that show in a flash in a spectacular way where the building is located. All facades around the patio are glazed, with double-opening doors on the ground floor and double French windows on the floor.

Leave your comment

0 Comments
Newest
Oldest Most Voted
Inline Feedbacks
View all comments