HALA PRZEMIAŁOWNI

Construsoftbimawards - HALA PRZEMIAŁOWNI
Kategoria Projekty przemysłowe
Rok 2020
Kraj Poland
Organizacja REMO
Autor Romuald Lewicki
Miejsce budowy Lubień Kujawski
Tags

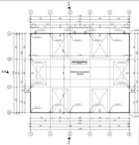
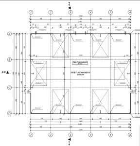
Zaprojektowana została hala jednonawowa w technologii stalowej prefabrykowanej z ryglami ściennymi. Hala ma wymiary 20 x 25m.Wysokość użytkowa, wewnątrz do najniższego punktu dźwigara wynosi ok 14m. Górny poziom kalenicy wynosi 15,50 m. Konstrukcja dachu składa się z dźwigarów kratowych przegubowo zamocowanych do słupów (układy główne) oraz rygli dachowych w postaci kształtowników walcowanych, sztywno zamocowanych w słupach (układy ścian szczytowych). Schemat poprzeczny hali składa się ze słupów prefabrykowanych sztywno zamocowanych w fundamencie żelbetowym monolitycznym, przegubowo połączonych z dźwigarami kratowymi (układy główne) oraz sztywno zamocowanych rygli dachowych ( układy poprzeczne ścian szczytowych). Usztywnienia przestrzenne w ścianach stanowią stężenia pionowe prętowe, a w dachu zastosowano klasyczne rozwiązanie stężeniami typu X. Poszycie dachu stanowi płyta warstwowa oparta na płatwiach.

A single-nave hall was designed in prefabricated steel technology with wall bolts. Usable height, inside to the lowest point of the girder is 13.79m. The upper ridge level is 15.49 m. The roof structure consists of trusses articulated to the columns (main systems) and transoms in the form of rolled sections rigidly attached to the columns (gable wall systems). The hall transverse scheme consists of prefabricated columns rigidly fixed in a monolithic reinforced concrete foundation, articulated with trusses (main systems) and rigidly fixed roof transoms (transverse gable walls). Spatial stiffenings in the walls are vertical bar bracing, and the roof uses a classic solution with X-type bracing. The roof sheathing is a sandwich panel based on purlins.

Komentuj

0 Comments
Najnowsze
Najstarsze Najwięcej głosów
Opinie w linii
Zobacz wszystkie komentarze